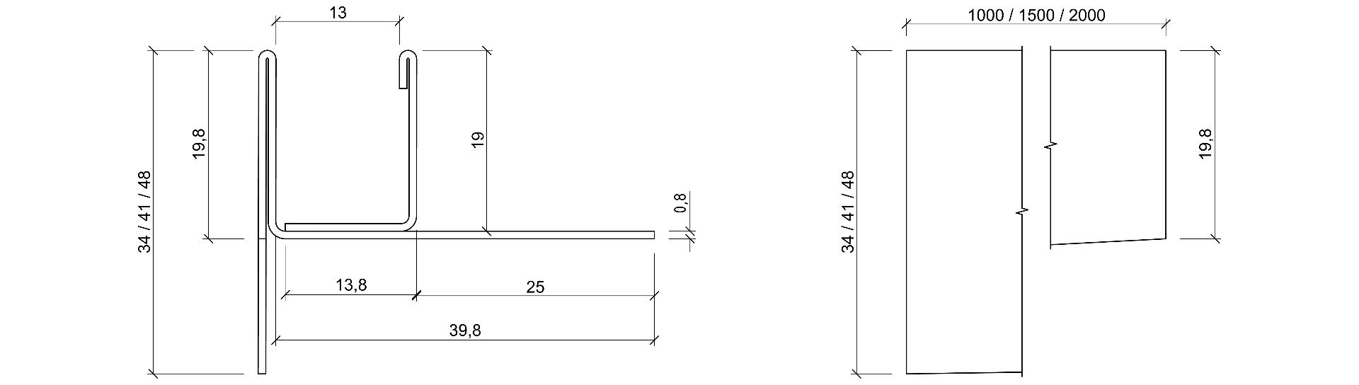
Gefälleprofil mit Glashalterung
Farbalternativen
|
gebürstet |
gebürstet, anthrazit matt PVD-beschichtet |