PB95

Unterputz Sockelleistenprofil mit Designkant

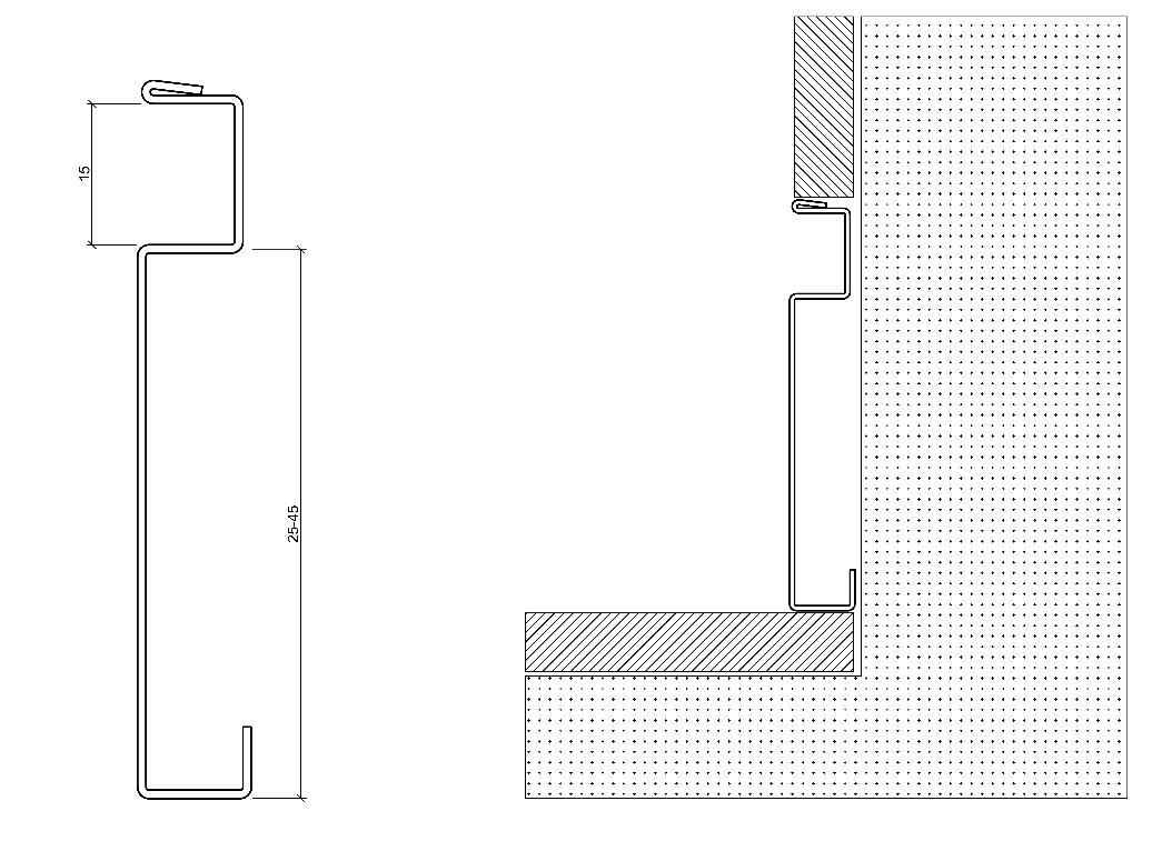
PB95 ist ein modernes Unterputz Sockelleistenprofil mit auffälligem Design. Durch die durchdachte Gestaltung der oberen Kante entsteht eine Schattenfuge zwischen Fliese und Sockelleiste. Dies verleiht dem Bodenabschluss einen außergewöhnlichen Look. Wir stellen PB94 in Edelstahl gebürstet und in der Gesamthöhe von 50 mm her.


Satin


Farbalternativen, die wir speziell für geplante Bestellungen herstellen können



Gold, glänzend

Bronze, glänzend